Back

Print

Send to a friend

Save as favourite

656-6147545826145122025520.jpg 656-614754592614512202598.jpg 656-6147545926145122025536.jpg 656-6147545926145122025926.jpg 656-614754027145122025395.jpg 656-614754027145122025848.jpg 656-61475412714512202583.jpg 656-614754127145122025301.jpg 656-614754127145122025551.jpg 656-614754127145122025739.jpg
Loading...

Building plot for sale L´Escala

Object-ID: 614754

€340,000

Specifications

Land: 1

Description

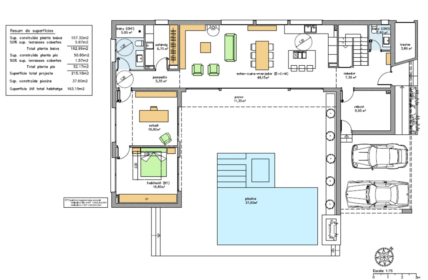
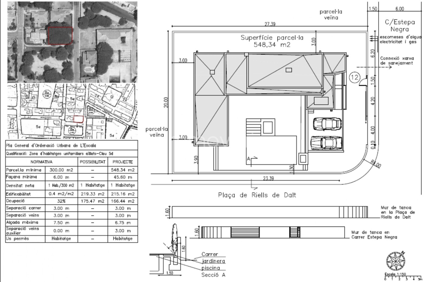
Terreno edificable en L'Escala Riells ¿Busca una parcela perfecta para construir la casa de sus sueños en L'Escala Riells? Le presentamos este terreno en esquina de 539 m², situado en una zona tranquila de Riells. Le ofrecemos este terreno con un proyecto de vivienda de dos plantas, con 215 m² en la planta baja y 54 m² en la planta superior, que incluye dos dormitorios, un despacho, dos baños, un vestidor, un sótano, un salón-comedor con cocina abierta, un lavadero, un garaje para dos coches y una piscina con zona de jacuzzi. Este proyecto ha sido aceptado por el ayuntamiento, pero necesita actualizarse. Si lo prefiere, puede realizar su propio proyecto. Se encuentra a solo 1 km del centro y de la playa de L'Escala Riells.
Building plot in L'Escala Riells Are you looking for the perfect plot to build your dream home in L'Escala Riells? We present this 539m² corner plot, located in a quiet neighbourhood of Riells. We are offering this plot with a project for a two-storey house with 215m² on the ground floor and 54m² on the first floor, comprising two bedrooms, an office, two bathrooms, a dressing room, a cellar, a living room with an open-plan kitchen, a laundry room, a garage for two cars and a swimming pool with a jacuzzi area. This project has been approved by the town hall but needs to be updated. Alternatively, you can create your own project. It is located just 1 km from the centre and beach of L'Escala Riells.
Terrain à construire à L'Escala Riells Vous cherchez une parcelle parfaite pour construire la maison de vos rêves à L'Escala Riells Nous vous présentons ce terrain d'angle de 539m², situé dans un quartier calme de Riells. Nous vous proposons ce terrain avec un projet d'une maison construit sur deux étages avec au rez de chaussé 215m² et à l'étage 54m², comprenant deux chambres, un bureau, deux salles de bains, un dressing, une cave, un salon séjour avec une cuisine ouverte, une buanderie, un garage pour deux voitures et une piscine avec coin jacuzzi. Ce projet a été accepté par la mairie mais il a besoin d'être actualiser. Sinon vous pouvez faire votre propre projet. Il est situé à seulement 1km du centre et de la plage de L'Escala Riells.

Ask for more info

We speak:

1034 1033 1036 1031

Contact details

By clicking on "Send" you accept our Privacy Policy

* = Required

Provider

}