











Loading...
Building plot for sale Ariany
Object-ID: 596417
€295,000
Description
This is a special opportunity to acquire a plot with a valid building licence.
Embedded in nature, the location offers a fantastic view of the Tramuntana mountains.
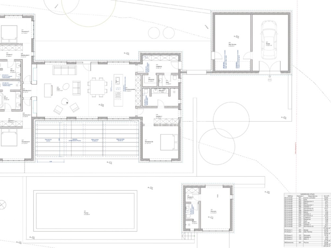
One of the special features of the offer is the pool with an approved size of 11 x 4 metres, which would no longer be approved in this dimension under current building law.
The approved living space is 244 m2 plus a garage of additional 50 m2.
The plot is idyllically embedded in nature and only about 25 minutes drive from the beautiful beach of Son Serra de Marina or Can Picafort.
The offer includes the basic project as well as the executive project, which has the advantage that the construction can be started immediately.
As far as the fresh water supply is concerned, there is already a municipal water connection at the foot of the plot.
For electricity, a municipal connection can be applied for, alternatively the possibility for solar energy is offered.
Please note: 21% VAT applies upon purchase, as opposed to the standard land transfer tax. The sales price includes the plot and approved project; construction is not buyer must confirm the current building regulations with an architect.
Se trata de una oportunidad especial para adquirir una parcela con licencia de obras en vigor.
Integrado en la naturaleza, el lugar ofrece una fantástica vista de la sierra de Tramuntana.
Una de las particularidades de la oferta es la piscina con un tamaño aprobado de 11 x 4 metros, que ya no se aprobaría en esta dimensión según la ley de construcción actual.
La superficie habitable aprobada es de 244 m2 más un garaje de 50 m2 adicionales.
La parcela está idílicamente integrada en la naturaleza y a sólo unos 25 minutos en coche de la hermosa playa de Son Serra de Marina o Can Picafort.
La oferta incluye el proyecto básico y el proyecto ejecutivo, lo que tiene la ventaja de que la construcción puede iniciarse inmediatamente.
En cuanto al suministro de agua dulce, ya existe una conexión de agua municipal a pie de parcela.
Para la electricidad, se puede solicitar una conexión municipal, alternativamente se ofrece la posibilidad de energía solar.
Importante: al momento de la compra se aplica un IVA del 21%, en lugar del impuesto de transmisiones patrimoniales habitual. El precio de venta incluye la parcela y el proyecto aprobado; la construcción no está incluida. El comprador deberá confirmar con un arquitecto la normativa de construcción vigente.
Hier bietet sich die besondere Gelegenheit, ein Grundstück mit gültiger Baulizenz zu erwerben.
Eingebettet in die Natur bietet die Lage einen traumhaften Weitblick auf das Tramuntana Gebirge.
Eine der Besonderheiten des Angebots ist der Pool mit einer genehmigten Größe von 11 x 4 Metern, welcher in diesem Maße nach aktuellem Baurecht heute nicht mehr genehmigt würde.
Die genehmigte Wohnfläche beträgt 244 m2 plus einer Garage von zusätzlich 50 m2.
Das Grundstück liegt idyllisch eingebettet in der Natur und nur ca. 25 Fahrminuten vom traumhaften Strand Son Serra de Marina oder Can Picafort entfernt.
Das Angebot beinhaltet das Basis Projekt sowie das ausführende Projekt, dies hat den Vorteil das unverzüglich mit dem Bau begonnen werden kann.
Was die Frischwasserversorgung betrifft liegt bereits ein städtischer Wasseranschluß am Fuße des Grundstücks.
Für Strom kann wahlweise ein städtischer Anschluß beantragt werden, alternativ bietet sich die Möglichkeit für Solarenergie an.
Hinweis: Beim Kauf fällt eine Mehrwertsteuer von 21 % an, anstelle der üblichen Grunderwerbssteuer. Der Verkaufspreis umfasst das Grundstück sowie das genehmigte Projekt; der Bau ist nicht im Preis inbegriffen. Der Käufer muss die aktuellen Bauvorschriften mit einem Architekten abklären.
... more >>