















Loading...
Building plot for sale Ariany
Object-ID: 598306
€350,000
Description
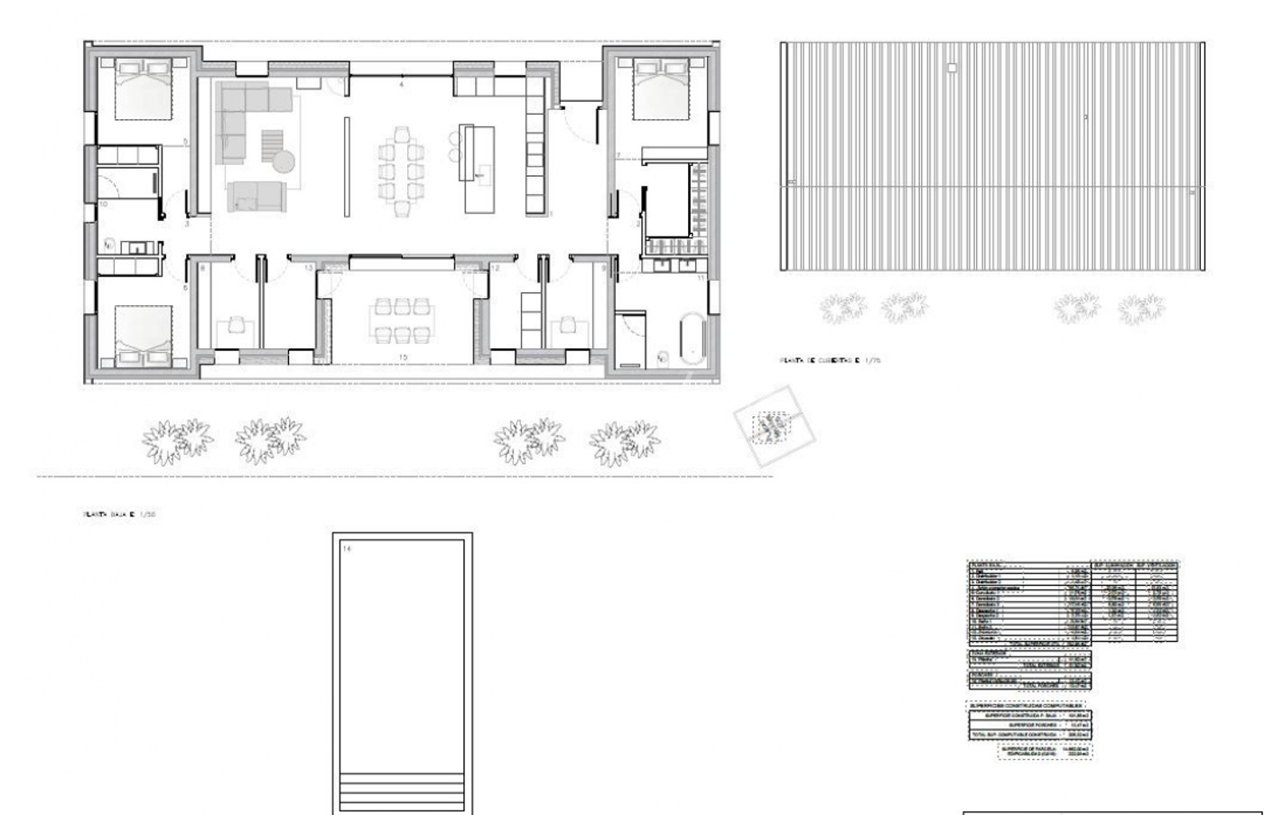
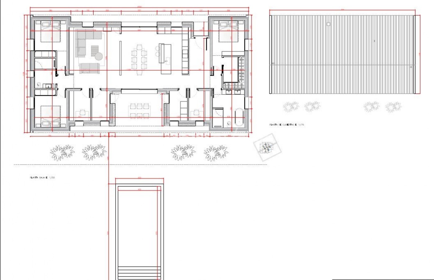
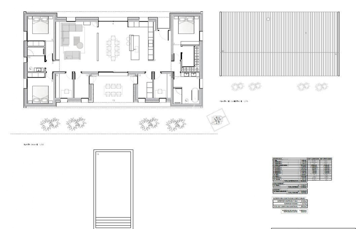
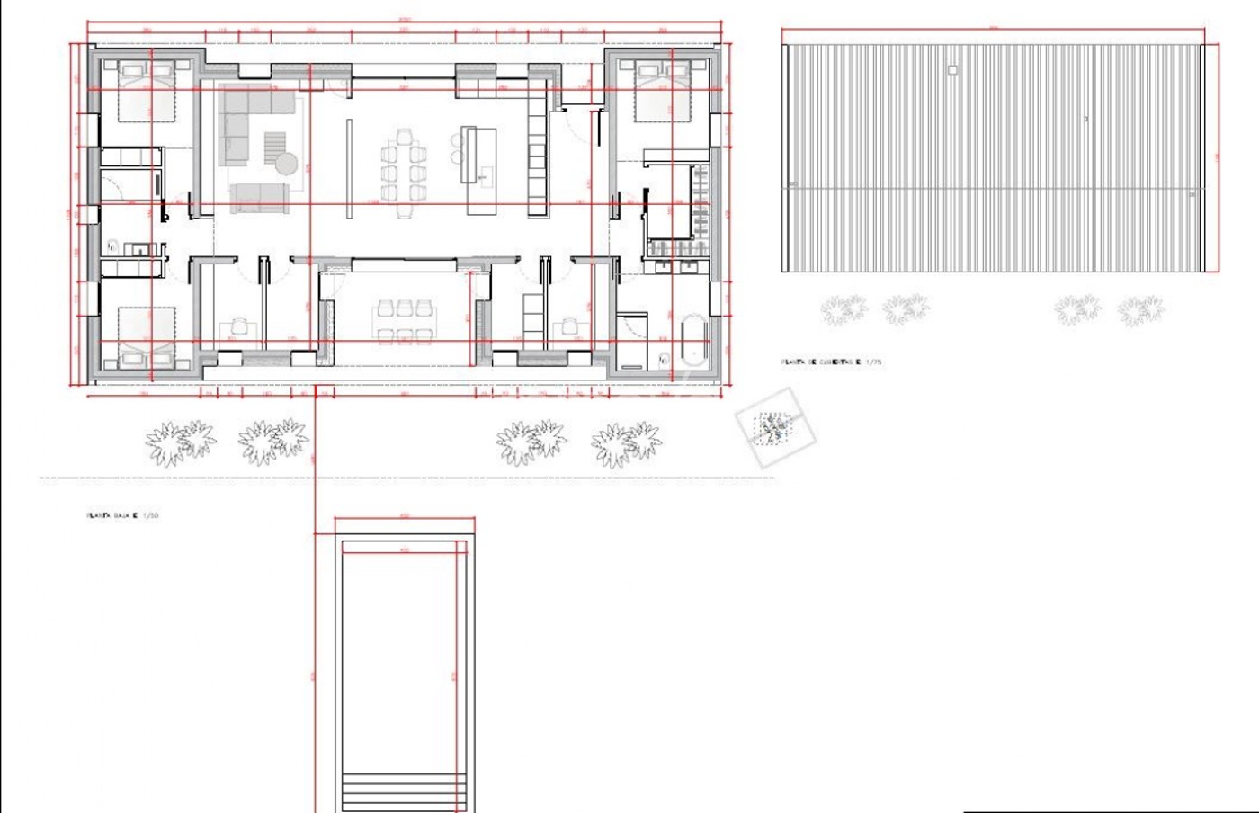
This plot is located in a small valley and covers an area of m². The setting is truly idyllic, surrounded by nature and offering stunning views of the Serra de Tramuntana. The tranquility and peace of this location are some of the key features it offers. Additionally, there are no large towns nearby, no airplanes overhead, and no power lines to disrupt the natural aesthetic. The project includes plans for a 210 m² house with three bedrooms, two bathrooms, and a swimming pool. There is already a small house on the property, which would be ideal for renovating it into a guesthouse. The property is self-sufficient with photovoltaic electricity and a water well. The building permit was issued in July 2024, allowing construction to begin immediately.
Another advantage: The beautiful natural beach of Son Serra de Marina is just a 20-minute drive away.
El terreno se ubica en un pequeño valle y comprende una extensión de m2. El entorno en este terreno es idílico, ya que está rodeado de naturaleza y tiene unas vistas impresionantes a la Serra de Tramuntana. La tranquilidad y la paz del lugar son una característica importante de este terreno. Por otro lado, no hay grandes pueblos alrededor; tampoco se oyen los aviones pasar y no hay ningún poste eléctrico que rompa con la estética natural. El proyecto prevé una casa de 210 m2 con tres dormitorios, dos baños y una piscina. Ya hay una pequeña casa en la propiedad, que sería ideal para transformarla en una casa de invitados. El suministro eléctrico es autosuficiente gracias a la energía fotovoltaica, además de un pozo de agua. La licencia de construcción se expidió en julio de 2024 y se puede empezar a construir de inmediato.
Otra ventaja: La hermosa playa natural de Son Serra de Marina se encuentra a tan solo 20 minutos.
Das Grundstück liegt in einem kleinen Tal und hat eine Gesamtfläche von m2. Es verspricht eine herrlich grüne Umgebung mit Blick zum Tramuntana Gebirge. Besonders hervorzuheben ist die ruhige und friedliche Lage, es gibt keine großen Straßen, absolut kein Flugverkehr und auch keine unschönen Strommasten. Das Haus ist auf einer Ebene mit 210 m2, drei Schlafzimmern, zwei Badezimmern und einem Swimmingpool geplant. Auf dem Grundstück befindet sich auch ein kleines bestehendes Haus, welches sich ideal eignet, als Gästehaus auszubauen. Die Versorgung ist autark durch Photovoltaik. Es befindet sich ein Wasserbrunnen auf dem Grundstück. Die Baulizenz wurde im Juli 2024 ausgestellt und man kann direkt anfangen zu bauen.
Weiteres Plus: Den wunderschönen Natur-Strand von Son Serra de Marina erreicht man in 20 Minuten.
... more >>