





Loading...
Building plot for sale Colònia de Sant Pere - Artà
Object-ID: 595891
€300,000
€350,000
Description
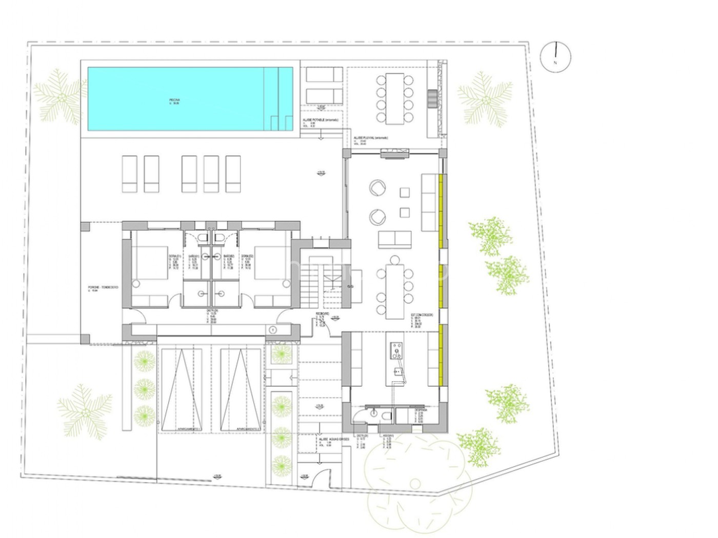
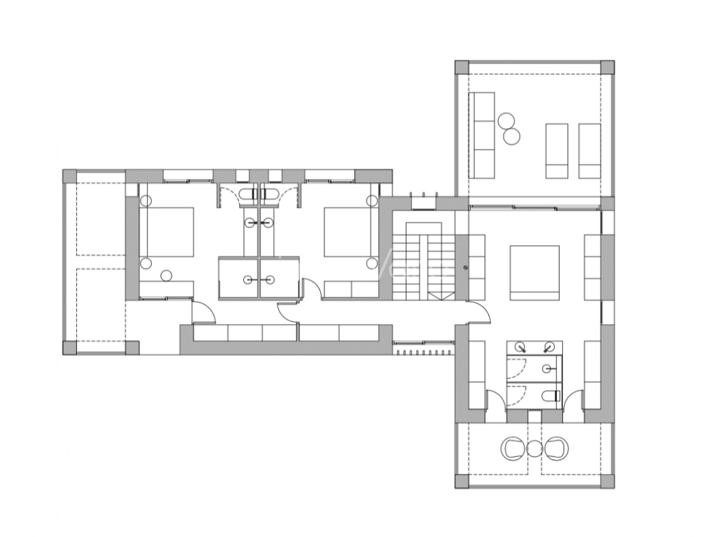
This 700 m² developed plot is located in the picturesque coastal village of Colònia de Sant Pere near Artá. The plot has a basic project for the construction of a two-storey detached house with five bedrooms, five bathrooms and a swimming pool. On the ground floor there will be a living and dining room with an open-plan kitchen, a pantry, a guest toilet and two bedrooms with en suite bathrooms. Three further bedrooms, each with en suite bathroom, are planned on the upper floor of the house. The harbour, the beach promenade with cafés and restaurants and a small beach are just a few minutes' walk away.
Esta parcela urbanizada de 700 m² se encuentra en el pintoresco pueblo costero de Colònia de Sant Pere, cerca de Artá. La parcela cuenta con un proyecto básico para la construcción de una casa unifamiliar de dos plantas con cinco dormitorios, cinco baños y una piscina. En la planta baja habrá un salón-comedor con cocina americana, una despensa, un aseo de invitados y dos dormitorios con baños en suite. Otros tres dormitorios, cada uno con baño privado, están previstos en la planta superior de la casa. El puerto, el paseo marítimo con cafés y restaurantes y una pequeña playa se encuentran a pocos minutos a pie.
Dieses 700 m² große, erschlossene Grundstück liegt in dem malerischen Küstendorf Colònia de Sant Pere bei Artá. Das Grundstück verfügt über ein Basisprojekt zum Bau eines zweistöckigen Einfamilienhauses mit fünf Schlafzimmern, fünf Badezimmern und Swimmingpool. Im Erdgeschoss sind, neben einem Wohn- und Esszimmer mit offener Küche, eine Speisekammer, ein Gäste-WC, zwei Schlafzimmer mit Bädern en Suite vorgesehen. Im Obergeschoss des Hauses sind drei weitere Schlafzimmer, jeweils mit Bad en Suite geplant. Der Hafen, die Strandpromenade mit Cafés und Restaurants sowie ein kleiner Strand sind nur wenige Fußminuten entfernt.