










Loading...
Building plot for sale Bunyola
Object-ID: 610737
€890,000
Description
This exceptional plot of land offers a unique opportunity to realize the dream of a luxurious finca in a privileged location near Palma. A key highlight of this offer is the potential for an early start to construction. A positive decision from the Island Council has already been received, with a decision from the Bunyola building authority still pending, as well as the final execution project—which a buyer can still make changes to.
The property is situated on an expansive, almost flat plot of an impressive 44,235 m². It's picturesquely framed by pine trees and offers a breathtaking, unobstructed view of the rolling green landscape and surrounding mountains. A license for a private well has already been applied for.
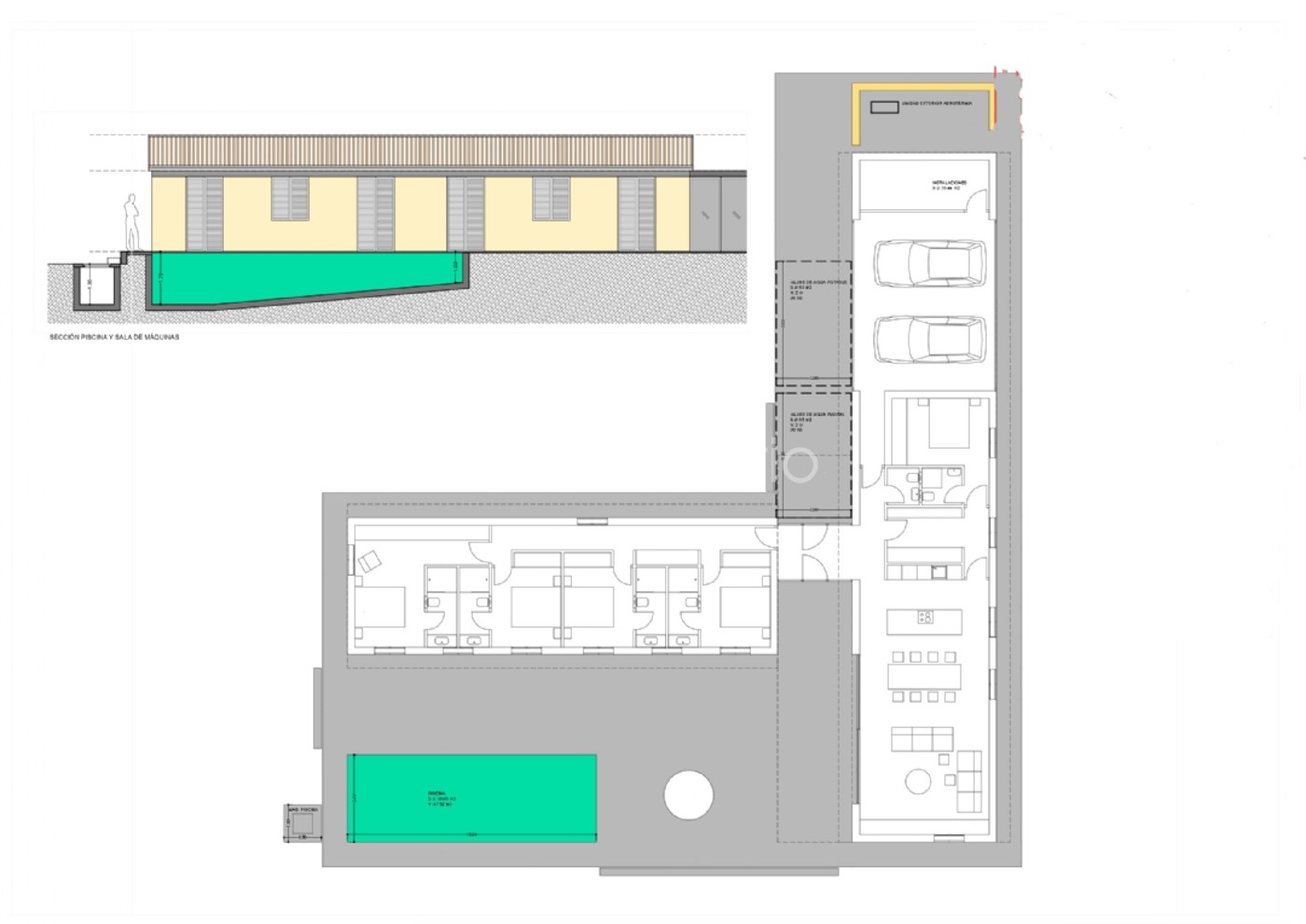
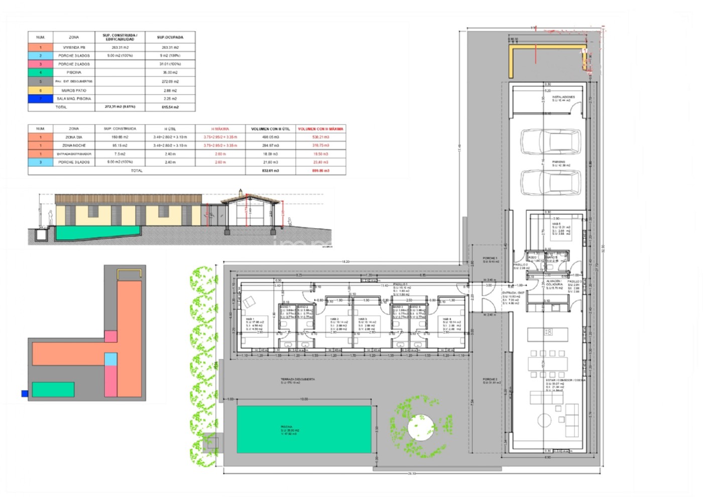
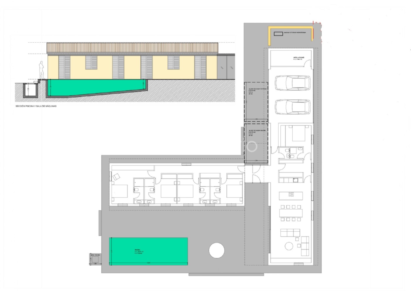
The planned single-level finca has a built area of 272 m² and a perfect layout. It will feature five bedrooms and five bathrooms, all en-suite. The open floor plan seamlessly connects a spacious living and dining area with a modern kitchen, creating light-filled, flowing spaces.
The outdoor area is designed as a private oasis of tranquility. It includes a spacious 36 m² outdoor pool surrounded by an elegant terrace, perfect for relaxation. A garage provides space for two vehicles. The entire property blends harmoniously into its natural surroundings, promising the highest quality of life and complete privacy.
Esta excepcional parcela de terreno presenta una oportunidad única para hacer realidad el sueño de una finca de lujo en una ubicación privilegiada cerca de Palma. Una característica destacada de esta oferta es el posible inicio temprano de la construcción. Ya se ha recibido una resolución positiva del Consell Insular, estando pendiente la resolución del departamento de urbanismo de Bunyola y el proyecto de ejecución final, que el comprador aún puede modificar.
La propiedad está situada en una extensa parcela de m², prácticamente llana. Está pintorescamente rodeada de pinos y ofrece unas impresionantes vistas despejadas del paisaje verde circundante y las montañas. Ya se ha solicitado una licencia para un pozo propio.
La finca proyectada de una sola planta tiene una superficie construida de 272 m² y una distribución perfecta. Contará con cinco dormitorios y cinco baños, todos ellos en suite. La planta diáfana conecta a la perfección la amplia zona de salón y comedor con una moderna cocina, creando espacios luminosos y fluidos.
Dieses außergewöhnliche Grundstück präsentiert eine einmalige Gelegenheit, den Traum von einer luxuriösen, Finca in privilegierter Lage nahe Palma zu verwirklichen. Das herausragende Merkmal dieses Angebots ist der mögliche baldige Baubeginn - Der Positive Bescheid vom Inselrat liegt bereits vor, es fehlt der Bescheid des Bauamtes in Bunyola sowie das Ausführungsprojekt, das ein Käufer jetzt noch mit verändern kann.
Das Anwesen liegt auf einem weitläufigen, nahezu flachen Areal von beeindruckenden m². Es ist malerisch von Pinien umgeben und bietet eine atemberaubende, freie Aussicht auf die umliegende grüne Landschaft und die Berge. Eine Lizenz für einen eigenen Brunnen wurde bereits beantragt.
Die eingeschossig geplante Finca hat eine bebaute Fläche von 272 m² und ist perfekt aufgeteilt und wird fünf Schlafzimmer und fünf Badezimmer umfassen, die alle en-suite konzipiert sind. Der offene Grundriss verbindet einen weitläufigen Wohn- und Essbereich nahtlos mit einer modernen Küche und schafft lichtdurchflutete, fließende Räume.
Die Außenanlage ist als private Oase der Ruhe gestaltet. Sie verfügt über einen weitläufigen Außenpool von 36 m², der von einer eleganten Terrasse umgeben ist und zum Entspannen einlädt. Eine Garage bietet Platz für zwei Fahrzeuge. Die gesamte Immobilie fügt sich harmonisch in ihre natürliche Umgebung ein und verspricht ein Höchstmaß an Lebensqualität und Privatsphäre.
... more >>