
















Loading...
Building plot for sale Inca
Object-ID: 601112
€2,000,000
Description
This plot with project is located in Inca, just a few minutes' drive from the town. The well-known and sought-after wine region of Binissalem is also just a stone's throw away.
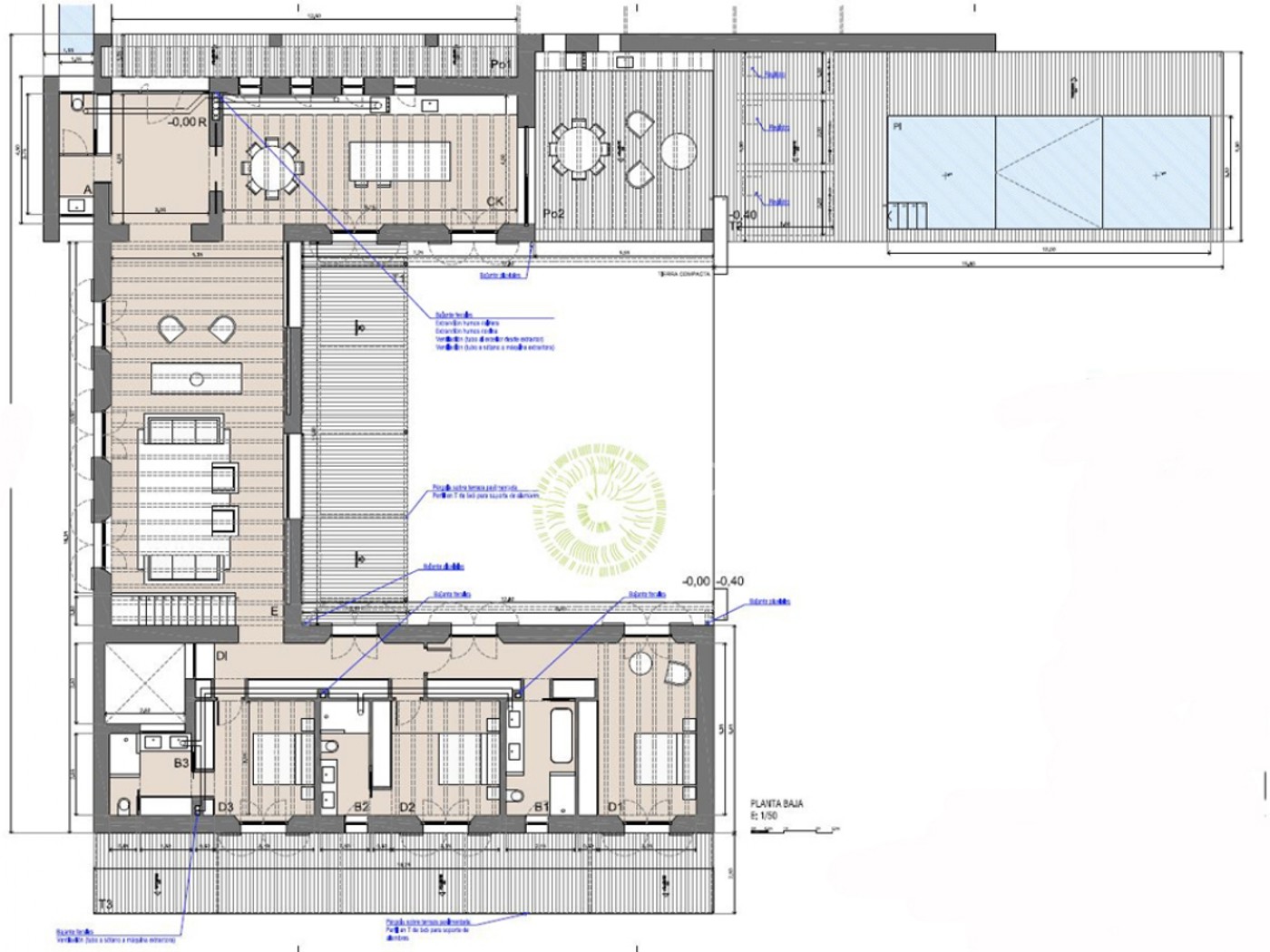
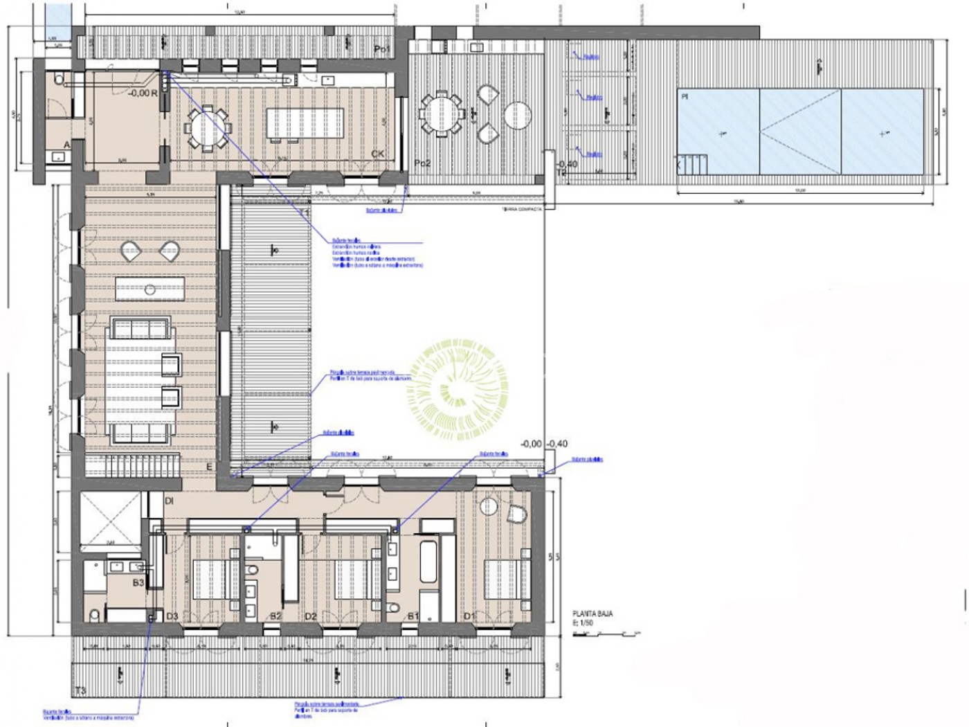
The project is to build a single level country house of 325m2 constructed area plus a basement of 161m2. The ground floor with its well-thought-out layout will have an entrance area, an open-plan kitchen, a spacious living room and three bedrooms as well as three bathrooms, two of which are en suite. Almost every room in the U-shaped house will have access to the landscaped garden with swimming pool, from which one can enjoy the mountain views.
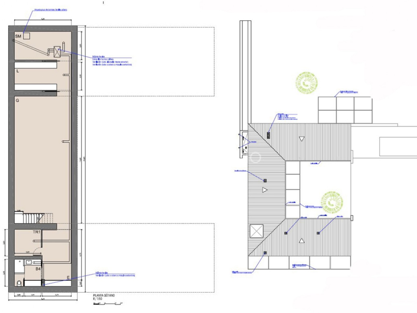
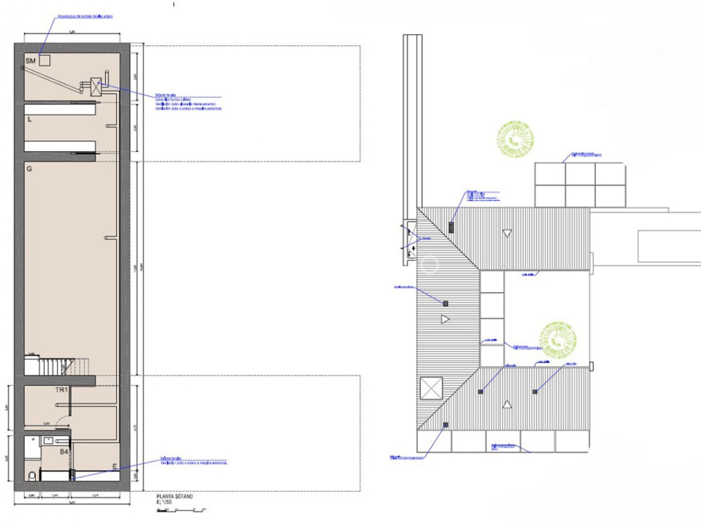
A fitness room and another bathroom will be located in the basement. There will also be a machine room, laundry room and storage room.
The property has its own well and will be connected to the city electricity network. The building licence has been granted and the construction project must be carried out by the buyer.
There is the possibility of completion by the seller.
Este terreno con proyecto se encuentra en Inca, a pocos minutos en coche de la ciudad. La conocida y codiciada región vinícola de Binissalem también está a muy poca distancia.
El proyecto contempla una casa de campo en planta baja de 325m2 construidos más un sótano de 161m2. La planta baja, con una distribución muy estudiada, contará con un hall de entrada, una cocina-comedor abierta, un amplio salón y tres dormitorios, además de tres baños, dos de ellos en suite. La casa en forma de U tendrá accesos desde casi todas las habitaciones al jardín paisajista con piscina, desde donde se podrá disfrutar de las vistas a la montaña.
En el sótano habrá una sala de fitness, así como otro cuarto de baño. También habrá una sala de máquinas, lavandería y un trastero.
La propiedad tiene su propio pozo y estará conectada a la red eléctrica de la ciudad. La licencia de obras está en vigor. El proyecto de construcción debe ser realizado por el comprador.
Existe la posibilidad de ejecución por parte del vendedor.
Dieses Grundstück mit Projekt liegt in Inca, nur wenige Fahrminuten von der Stadt entfernt. Auch die bekannte und begehrte Weinregion Binissalem ist nur einen Katzensprung weit weg.
Das Projekt sieht ein ebenerdiges Landhaus von 325m2 konstruierter Fläche plus ein Kellergeschoss von 161m2 vor. Das Erdgeschoss mit seiner gut durchdachten Aufteilung wird über einen Eingangsbereich, eine offene Wohnküche, ein großzügiges Wohnzimmer und drei Schlafzimmer sowie drei Badezimmer, davon zwei en suite, verfügen. Von dem Haus in U-Form wird man von fast jedem Zimmer aus in den angelegten Garten mit Swimmingpool gelangen, von dem aus man den Bergblick genießt.
Im Kellergeschoss werden sich ein Fitnessraum als auch ein weiteres Badezimmer befinden. Außerdem wird hier ein Maschinenraum, Waschraum als auch ein Abstellraum untergebracht.
Das Grundstück verfügt über einen eigenen Brunnen und wird an das Stadtstromnetzwerk angeschlossen. Die Baulizenz liegt vor und die Ausführung des Bauprojektes muss durch den Käufer erfolgen.
Es besteht die Möglichkeit der Fertigstellung durch den Verkäufer.
... more >>