






Loading...
Building plot for sale Llubí
Object-ID: 607123
€320,000
Description
An excellent opportunity to acquire this great plot with a valid building licence in the heart of Mallorca. Surrounded by nature and ideally located between Maria de la Salut and Llubí, the plot benefits from great infrastructure.
You’re just minutes away from charming towns like Sineu, known for its vibrant weekly market, and only a 15-minute drive from some of Spain’s most beautiful beaches. Palma and the airport can be reached in under 30 minutes, making this location both tranquil and convenient.
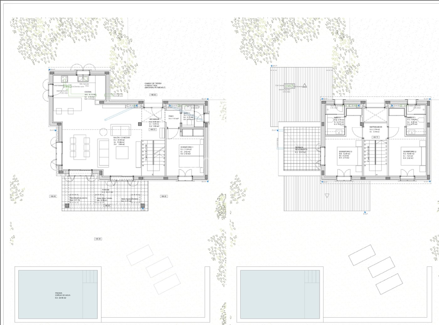
The licence permits the construction of a 142 m² property along with a pool of approximately 35 m². The land also features its own well for water supply.
Included in the sale are the plot, the valid building licence, and both the basic and execution projects. Please note: the price refers to the land and project—construction of the house is not included.
Other features: no electricity only via solar panels and batteries, own well, nice views.
Una excelente oportunidad de adquirir esta gran parcela con licencia de construcción válida en el corazón de Mallorca. Rodeada de naturaleza y situada de forma ideal entre María de la Salut y Llubí, la parcela cuenta con una excelente infraestructura.
Estás a solo unos minutos de encantadores pueblos como Sineu, conocido por su vibrante mercado semanal, y a solo 15 minutos en coche de algunas de las playas más bonitas de España. Palma y el aeropuerto están a menos de 30 minutos, lo que hace que esta ubicación sea tanto tranquila como conveniente.
La licencia permite la construcción de una propiedad de 142 m² junto con una piscina de aproximadamente 35 m². El terreno también cuenta con su propio pozo para el suministro de agua.
Incluidos en la venta están el terreno, la licencia de construcción válida y tanto los proyectos básicos como de ejecución. Nota: el precio se refiere al terreno y al proyecto; la construcción de la casa no está incluida.
Otras características: sin electricidad, solo mediante paneles solares y baterías, pozo propio, bonitas vistas.
Eine ausgezeichnete Gelegenheit, dieses großartige Grundstück mit gültiger Baugenehmigung im Herzen Mallorcas zu erwerben. Umgeben von Natur und ideal zwischen Maria de la Salut und Llubí gelegen, profitiert das Grundstück von einer guten Infrastruktur.
Nur wenige Minuten entfernt befinden sich charmante Dörfer wie Sineu, bekannt für seinen lebhaften Wochenmarkt, und nur 15 Minuten mit dem Auto von einigen der schönsten Strände Spaniens. Palma und der Flughafen sind in weniger als 30 Minuten erreichbar, was diesen Standort sowohl ruhig als auch praktisch macht.
Die Baugenehmigung erlaubt den Bau eines Hauses mit einer Fläche von 142 m² sowie eines Pools von ca. 35 m². Das Grundstück verfügt außerdem über einen eigenen Brunnen für die Wasserversorgung.
Zum Verkauf gehören das Grundstück, die gültige Baugenehmigung sowie die Grund- und Ausführungsprojekte. Hinweis: Der Preis bezieht sich auf das Grundstück und das Projekt; der Bau des Hauses ist nicht enthalten.
Weitere Merkmale: keine Elektrizität, nur durch Solarpanels und Batterien, eigener Brunnen, schöne Ausblicke.
... more >>