

















Loading...
Building plot for sale Llucmajor
Object-ID: 600429
€650,000
Description
This large rustic plot has views of Puig de Randa and is easily accessible from Palma and Llucmajor.
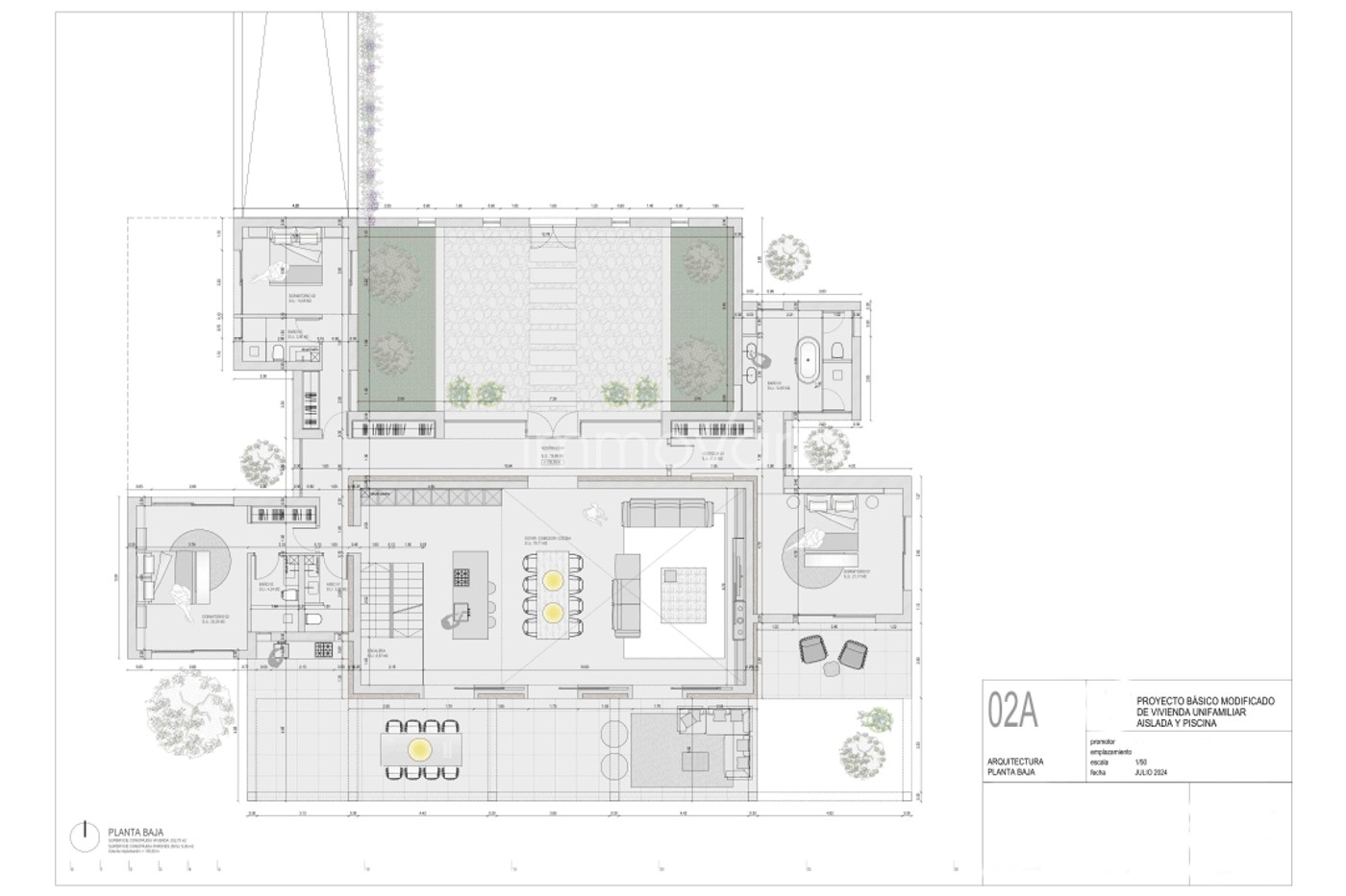
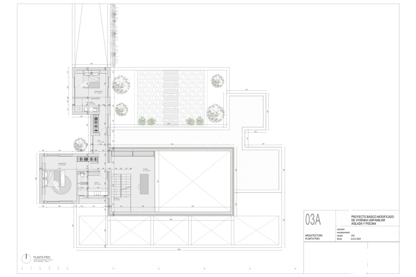
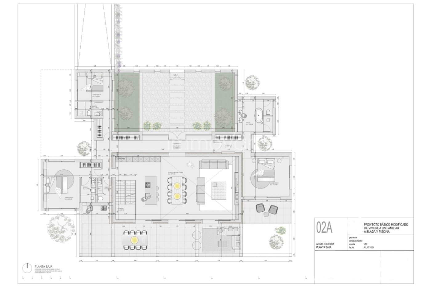
There is a project submitted to the city council for a house of approx. 400m2 with 35m2 pool, but the license has not yet been granted.
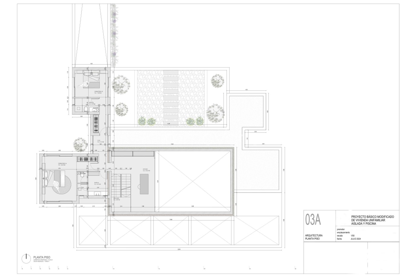
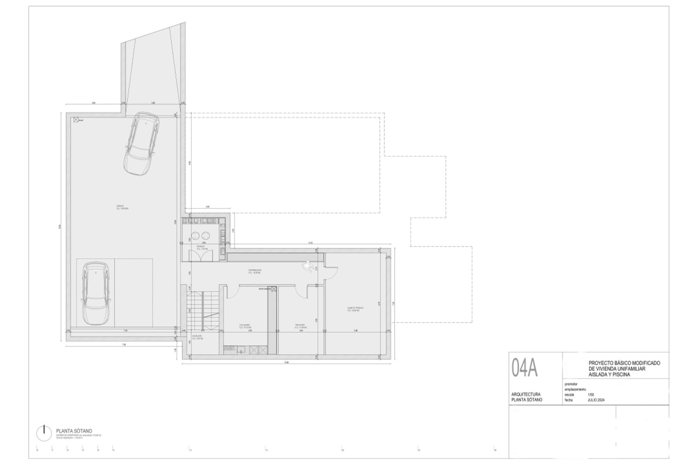
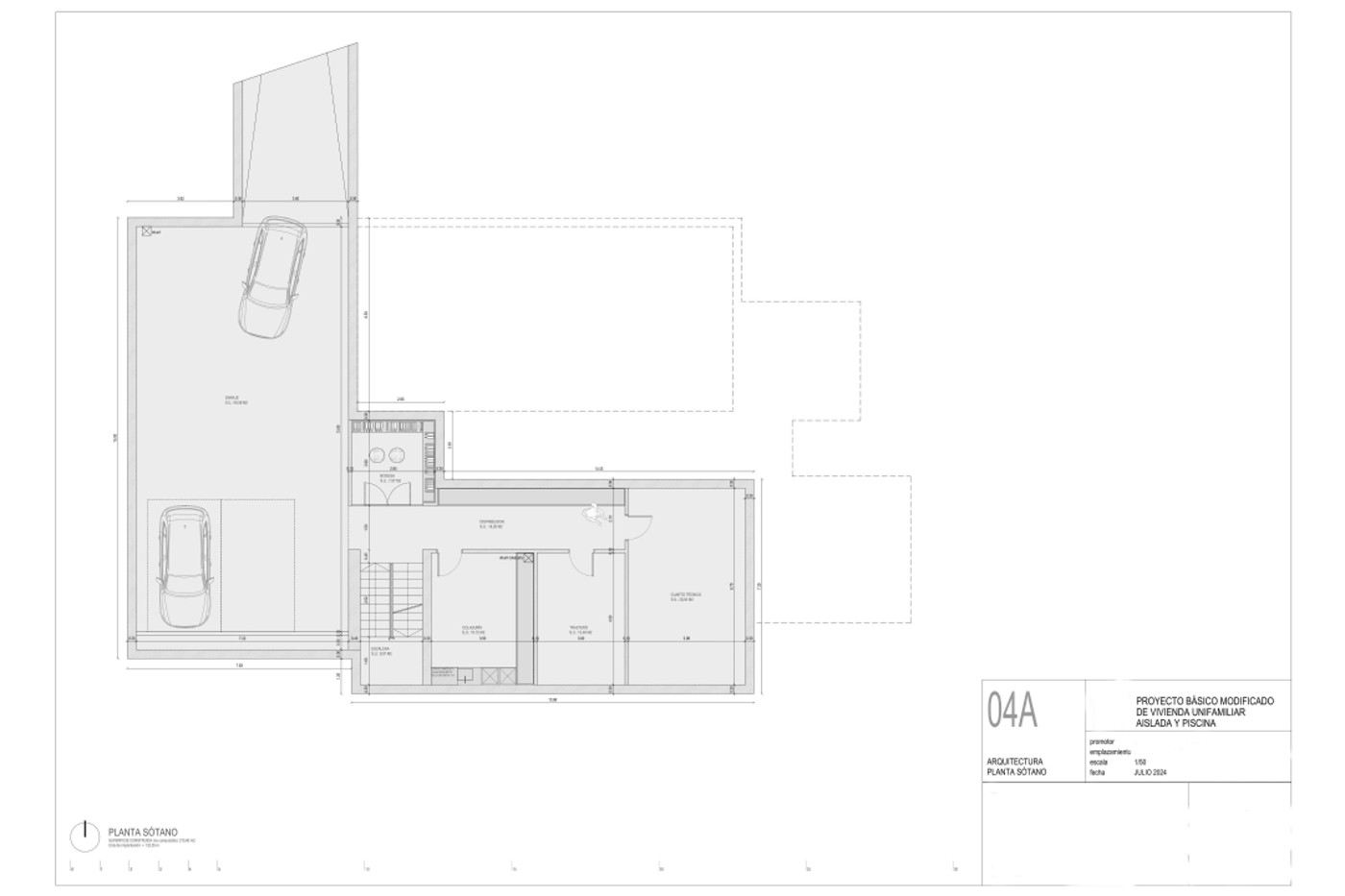
The project foresees a house with a main floor that will have three bedrooms with an en-suite bathroom each. Two of the bedrooms will be located in one wing of the house, and the master suite with a dressing room will be located on the other side of the house. On the other hand, a large space will integrate a bright kitchen, dining room and living room with large windows and direct access to the outdoor terrace. The house will have a first floor with two additional bedrooms with en-suite bathrooms and a study. Likewise, the ground floor will give access to a basement that will house a large garage for two vehicles. In addition, a cellar and a storage room will be installed.
Outside the house there will be a terrace with barbecue, chill-out areas and tents next to the spectacular 35m2 pool.
The sale price includes the land and the project, not the finished property.
Este gran solar rústico cuenta con vistas al Puig de Randa y es fácilmente accesible desde Palma y Llucmajor. Tiene un proyecto entregado al ayuntamiento para una edificación de vivienda de unos 400 m2 con piscina de 35 m2, no obstante, la licencia aún no se ha concedido.
El proyecto prevé una vivienda de una planta principal que contará con tres dormitorios con baño en-suite cada uno. Dos de los dormitorios se ubicarán en un ala de la casa, y la master suite con vestidor se ubicará en el otro lado de la casa. Por otro lado, un amplio espacio integrará una luminosa cocina, el comedor y el salón con grandes ventanales y acceso directo a la terraza exterior. La casa contará con una segunda planta que albergará dos dormitorios adicionales con baños en-suite y un estudio. Asimismo, la planta baja dará acceso a un sótano que albergará un gran garaje para dos vehículos. Además, se instalará una bodega y un trastero.
En el exterior de la casa se dispondrá de una terraza con barbacoa, zonas chill-out y carpas al lado de la espectacular piscina de 35m2.
El precio de venta incluye el terreno y el proyecto , no la propiedad terminada.
Dieses große ländliche Grundstück mit Blick auf den Puig de Randa ist von Palma und Llucmajor aus leicht zu erreichen. Es ist bei der Gemeinde ein Projekt für ein Haus von ca. 400 m2 mit einem 35 m2 Pool eingereicht, die Baugenehmigung wurde jedoch noch nicht erteilt.
Das Bauprojekt sieht ein einstöckiges Haupthaus mit drei Schlafzimmern mit jeweils einem Bad en suite vor. Zwei der Schlafzimmer befinden sich in einem Flügel des Hauses, während das Hauptschlafzimmer mit Ankleidezimmer auf der anderen Seite des Hauses liegt.
Auf der anderen Seite wird ein großer Raum für eine helle Küche, ein Esszimmer und ein Wohnzimmer mit großen Fenstern und direktem Zugang zur Außenterrasse integriert. Das Haus wird im ersten Stock zwei zusätzliche Schlafzimmer mit eigenem Bad und ein Arbeitszimmer haben. Das Untergeschoss bietet eine geräumige Garage mit zwei Stellplätzen einen zusätzlichen Abstellraum und einen Weinkeller.
Im Außenbereich des Hauses wird es eine Terrasse mit Barbecue-Bereich, einen spektakulären 35 m² großen Swimmingpool und mehrere Zonen zum Relaxen und Entspannen geben.
Der Verkaufspreis beinhaltet das Grundstück und das Projekt, nicht die fertige Immobilie.
... more >>