









Loading...
Building plot for sale Llucmajor
Object-ID: 601198
€495,000
Description
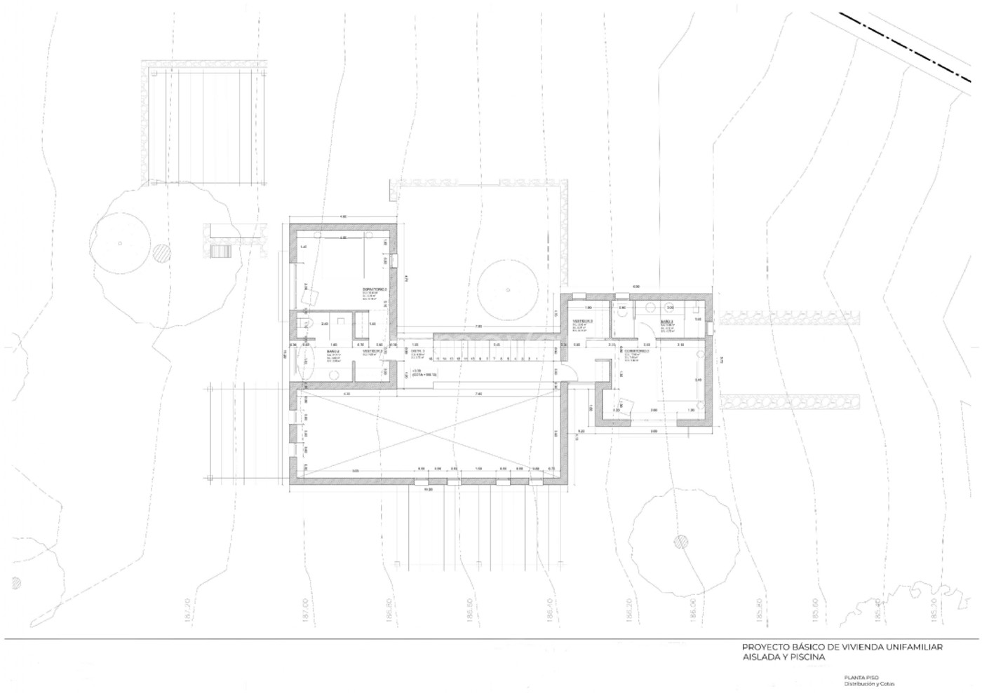
Just a few minutes from the village of Llucmajor, this spacious plot offers beautiful views of the mountains and the natural surroundings of Mallorca. A basic project has already been submitted to the local town hall for the construction of a house with a swimming pool; however, the building permit is still pending.
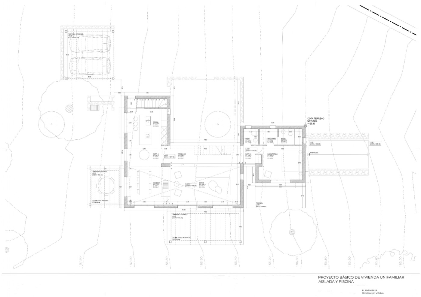
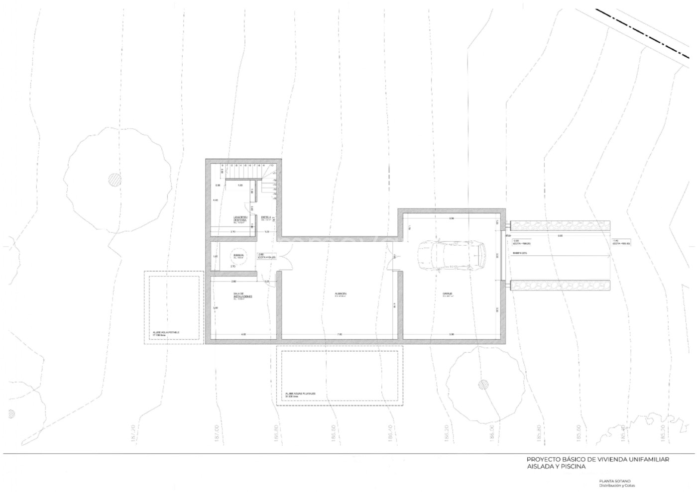
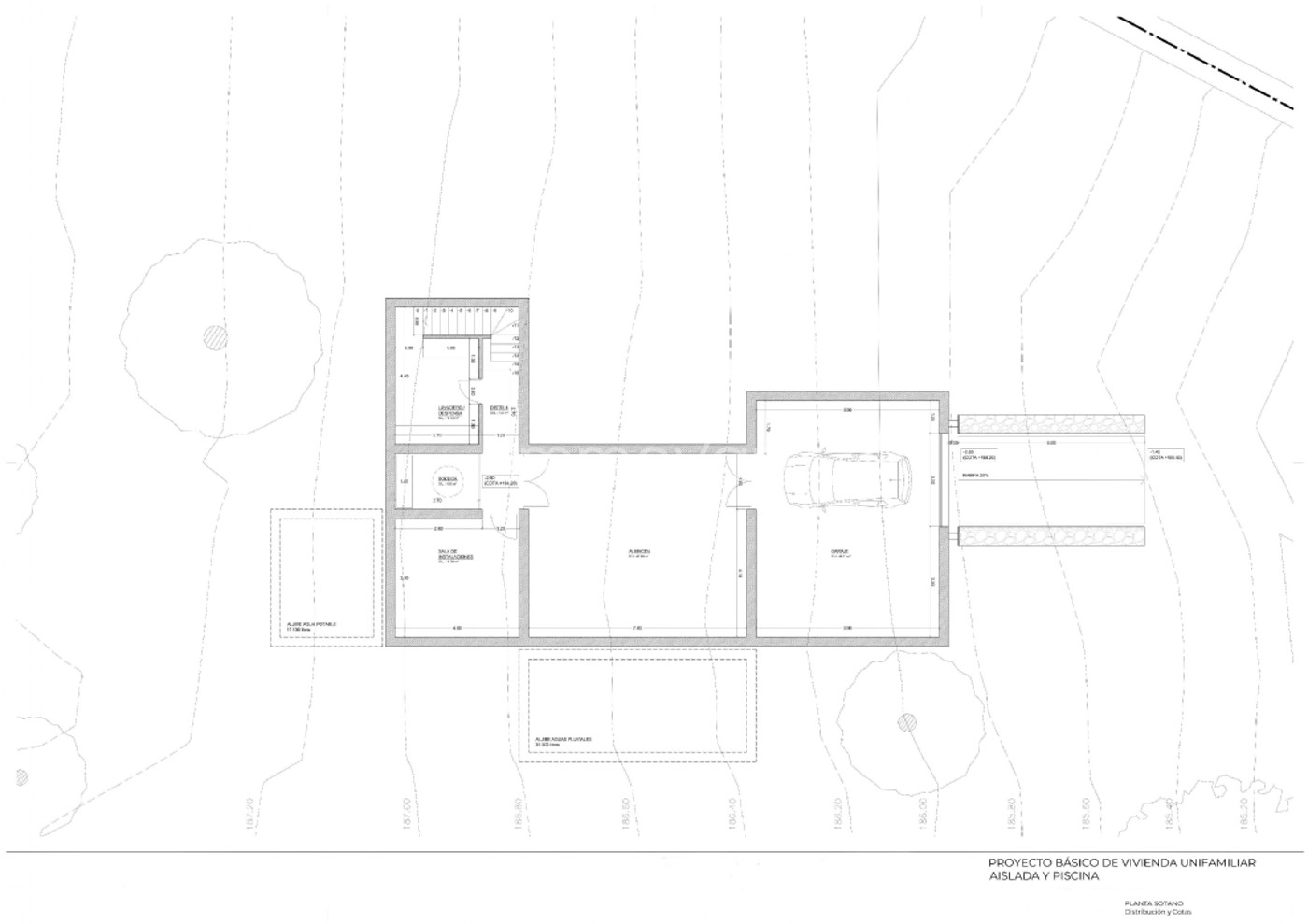
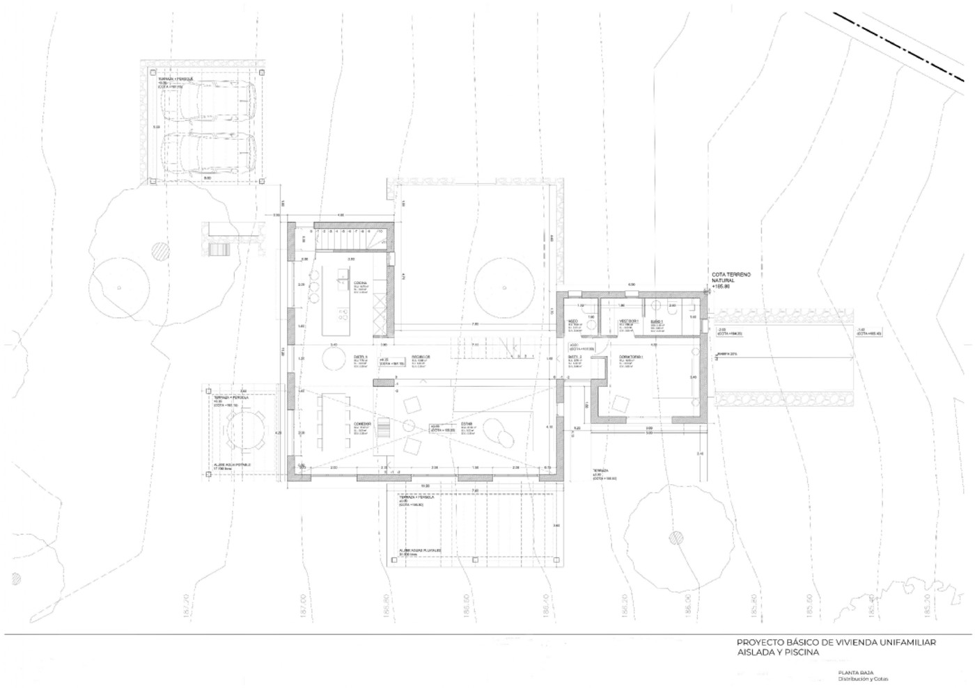
The planned constructed area amounts to 422 m², distributed over 262 m² on the ground floor and 160 m² on the first floor. Additionally, the project includes a 45 m² pool.
The property has a well on site for water supply, and the energy concept is based on solar panels, allowing for a fully self-sufficient and sustainable lifestyle.
This is a unique opportunity for those looking to combine nature, privacy, and modern living in a sought-after location in the south of the island.
A pocos minutos del pueblo de Llucmajor, este amplio terreno ofrece hermosas vistas a las montañas y al entorno natural de Mallorca. Ya se ha presentado un proyecto básico al ayuntamiento para la construcción de una vivienda con piscina; no obstante, la licencia de obra aún está pendiente.
La superficie construida prevista es de 422 m², distribuidos en 262 m² en la planta baja y 160 m² en la planta primera. Además, el proyecto incluye una piscina de 45 m².
La propiedad cuenta con un pozo propio para el suministro de agua, y el concepto energético se basa en el uso de paneles solares, lo que permite un estilo de vida autosuficiente y sostenible.
Una oportunidad única para quienes buscan combinar naturaleza, privacidad y vida moderna en una ubicación privilegiada al sur de la isla.
Nur wenige Minuten vom Dorf Llucmajor entfernt, bietet dieses großzügige Grundstück einen wunderschönen Blick auf die Berge und die natürliche Umgebung Mallorcas. Ein Basisprojekt für den Bau eines Hauses mit Pool wurde bereits bei der Gemeinde eingereicht; die Baugenehmigung steht jedoch noch aus.
Die geplante konstruierte Fläche beträgt 422 m², verteilt auf 262 m² im Erdgeschoss und 160 m² im Obergeschoss. Zusätzlich umfasst das Projekt einen Pool mit 45 m².
Das Grundstück verfügt über einen eigenen Brunnen zur Wasserversorgung, und das Energiekonzept basiert auf der Nutzung von Solarenergie – ideal für ein vollständig autarkes und nachhaltiges Leben.
Eine einzigartige Gelegenheit für alle, die Natur, Privatsphäre und modernes Wohnen in einer begehrten Lage im Süden der Insel verbinden möchten.
... more >>