









Loading...
Building plot for sale Son Gual - Palma de Mallorca
Object-ID: 598579
€495,000
Description
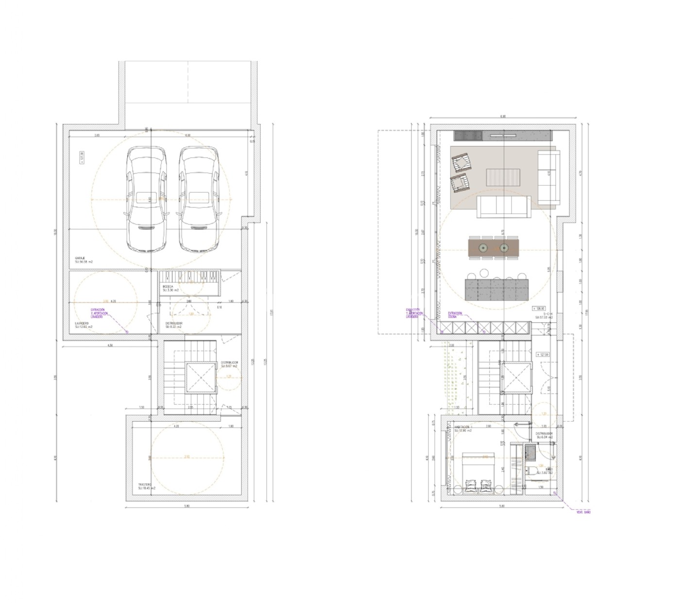
This plot of 2000 m² has a license for a spectacular project in Son Gual. It is a villa of about 700 m² of living space. The first floor will house a living-dining room that will merge with an open concept kitchen. On the same floor there will be a bright bedroom and a bathroom.
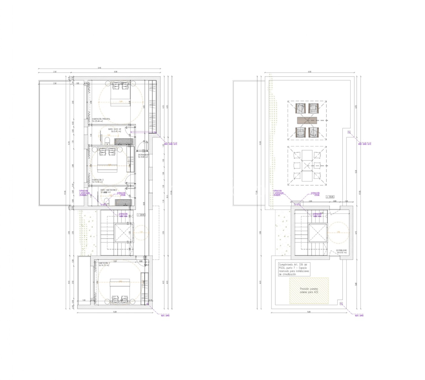
On the second floor, the sleeping area is planned. Here there will be three bedrooms and two bathrooms. All of them with lots of light. On the roof of the house will be installed a chill-out terrace with an area covered by pergolas and an area of solar panels.
In the garden area there will be a spectacular terrace area with outdoor tables and chill-out area. A small path will lead to the large swimming pool, surrounded by a beautiful garden with native plants.
Additional features: mains water and electricity, large basement, solar panels, spectacular views.
The sale price includes the land, the building license, but not the finished property.
Este terreno de 2000 m² tiene licencia para un proyecto espectacular en Son Gual. Se trata de una villa de unos 700 m² aproximadamente de superficie habitable. La planta baja albergará un salón-comedor que se fusionará con una cocina de concepto abierto. En está misma planta habrá un dormitorio de con mucha luz y un baño.
En la segunda planta, se prevé la zona de dormitorios. Aquí se encontrarán tres dormitorios y dos baños. Todos ellos con mucha luz. En la azotea de la casa se instalará una terraza chill-out con zona cubierta por unas pérgolas y una zona de paneles solares.
En la zona de jardín se dispondrá de una espectacular zona de terrazas con mesas exteriores y área chill-out. Un pequeño camino conducirá a la gran piscina, rodeada de un bonito jardín con plantas autóctonas.
Características adicionales: Agua corriente y electricidad, gran sótano, paneles solares, vistas espectaculares.
El precio de venta incluye el terreno, la licencia de obra, no la propiedad terminada.
Dieses Grundstück von 2000 m² hat eine Lizenz für ein spektakuläres Projekt in Son Gual. Es ist eine Villa mit ca. 700 m² Wohnfläche. Im Erdgeschoss befindet sich ein Wohn-Esszimmer, das mit einer offenen Küche verbunden ist. Auf der gleichen Etage befinden sich ein lichtdurchflutetes Schlafzimmer und ein Badezimmer.
Im ersten Stock ist der Schlafbereich geplant. Hier wird es drei Schlafzimmer und zwei Bäder geben. Allesamt mit viel Licht. Auf dem Dach des Hauses wird es eine Chill-out-Terrasse mit einer Pergola-Überdachung und einem Bereich mit Sonnenkollektoren geben.
Im Garten gibt es einen spektakulären Terrassenbereich mit Tischen im Freien und einem Chill-out-area. Ein kleiner Weg führt zum großen Pool, der von einem schönen Garten mit einheimischen Pflanzen umgeben ist.
Weitere Merkmale: Wasser- und Stromanschluss, großer Keller, Sonnenkollektoren, spektakuläre Aussicht.
Der Verkaufspreis umfasst das Grundstück, die Baugenehmigung aber nicht das fertige Objekt.
... more >>