





Loading...
Building plot for sale s´Aranjassa - Palma de Mallorca
Object-ID: 607250
€595,000
Description
This large plot, located in an idyllic residential area with well-maintained single-family homes, is easily accessible, just 15 minutes from Palma and 8 minutes from Llucmajor. It already has a building permit with a base project. The deadline to submit the detailed project is until January 9, 2026.
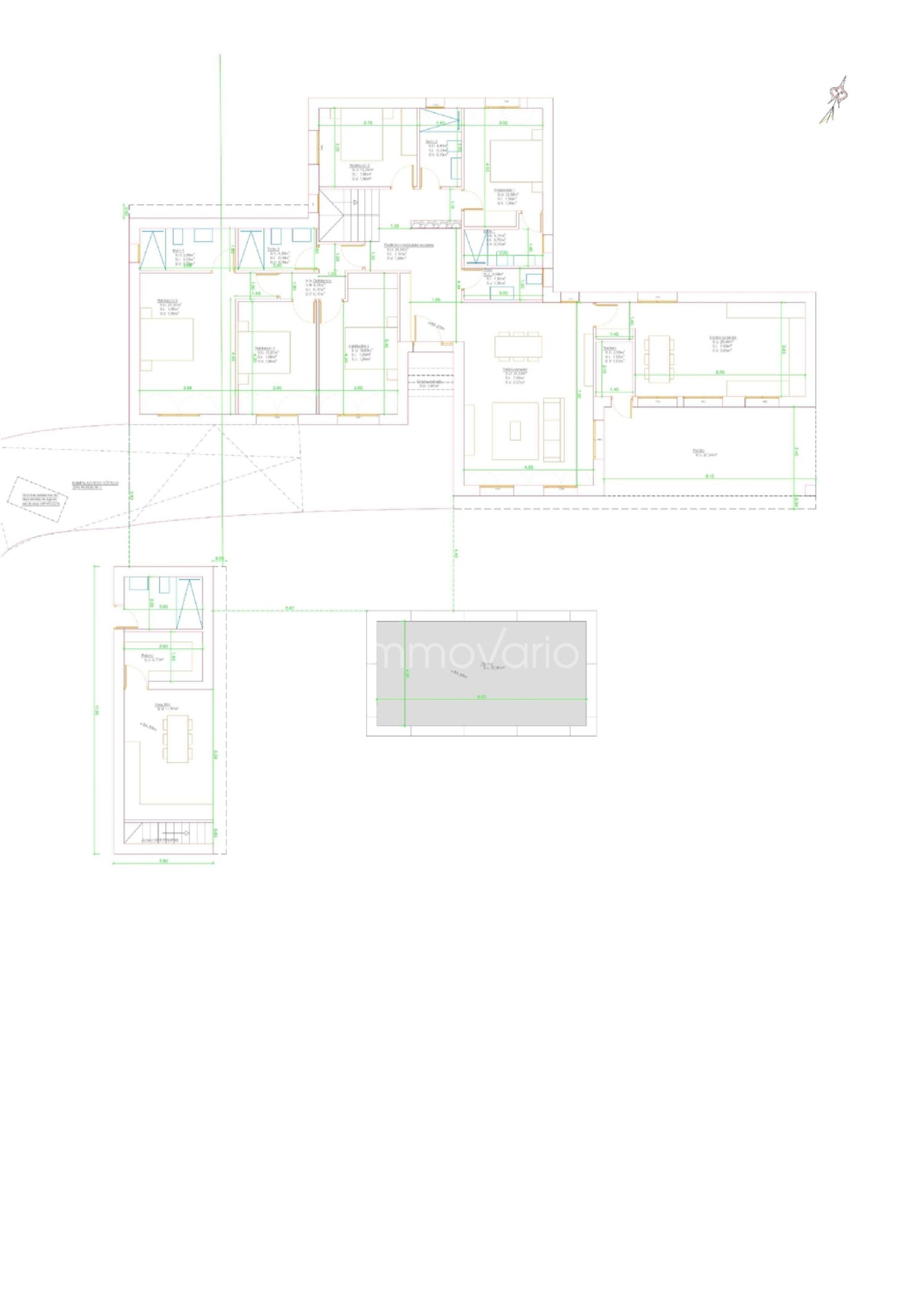
The construction project envisions a single-story house with a basement, underground garage, five bedrooms, and four bathrooms. Furthermore, a spacious room for a bright kitchen with dining area and a living room with large windows and direct access to the outdoor terrace will be integrated. The planned basement will offer a spacious garage with two parking spaces and an additional room that could be used, for example, as a gym. Outside the house, there will be a terrace with a barbecue area, a spectacular 35 m² swimming pool, and several zones for relaxing and unwinding. The sale price includes the plot and the project, but not the finished property.
Este amplio terreno, situado en una urbanización idílica con casas unifamiliares bien cuidadas, se encuentra a solo 15 minutos de Palma y a 8 minutos de Llucmajor. Ya cuenta con una licencia de construcción y un proyecto base aprobado. El plazo para presentar el proyecto ejecutivo vence el 09/01/2026.
El proyecto de construcción contempla una casa unifamiliar de una planta con sótano, garaje subterráneo, cinco dormitorios y cuatro baños. Además, se integrará un amplio espacio para una cocina luminosa con zona de comedor y una sala de estar con grandes ventanales y acceso directo a la terraza exterior. El sótano previsto incluirá un espacioso garaje con dos plazas de aparcamiento y una sala adicional que podría destinarse, por ejemplo, a gimnasio. En el exterior de la casa habrá una terraza con área de barbacoa, una espectacular piscina de 35 m² y varias zonas de relajación y descanso. El precio de venta incluye el terreno y el proyecto, pero no la propiedad terminada.
Dieses große Grundstück, das sich in einer idyllischen Urbanisation mit gepflegten Einfamilienhäusern befindet, ist von Palma in 15 Minuten und von Llucmajor in 8 Minuten leicht zu erreichen. Es gibt bereits eine Baugenehmigung mit einem Basisprojekt. Die Frist, um das Ausführungsprojekt zu präsentieren, geht bis zum .
Das Bauprojekt sieht ein ebenerdiges Einfamilienhaus mit Untergeschoss, Tiefgarage und fünf Schlafzimmern und vier Bädern vor. Des Weiteren wird ein großer Raum für eine helle Küche mit Essmöglichkeit und ein Wohnzimmer mit großen Fenstern und direktem Zugang zur Außenterrasse integriert. Das geplante Untergeschoss bietet eine geräumige Garage mit zwei Stellplätzen und einen zusätzlichen Raum, der zum Beispiel als Fitnessraum genutzt werden könnte. Im Außenbereich des Hauses wird es eine Terrasse mit Barbecue-Bereich, einen spektakulären 35 m² großen Swimmingpool und mehrere Zonen zum Relaxen und Entspannen geben. Der Verkaufspreis beinhaltet das Grundstück und das Projekt, nicht die fertige Immobilie.
... more >>